Heute ist es nun endlich soweit. Ich zeige euch mal unsere neue Wohnung im leeren Zustand, fotografiert beim Ausmessen.
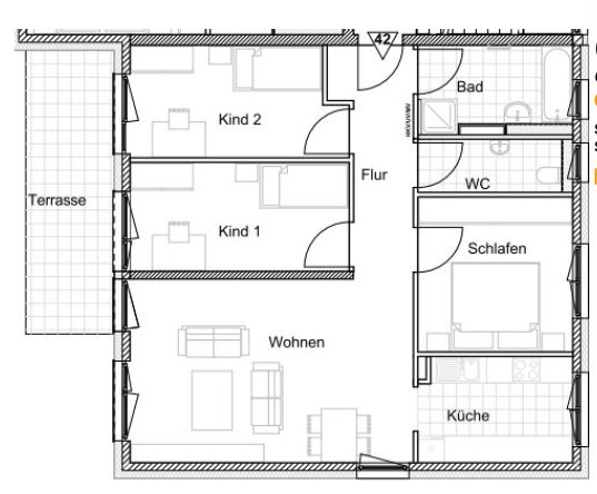
Hier erst mal der Grundriss:

Wir haben 4 Zimmer, Küche, Bad und separates WC und einen großen Balkon. Das Wohnzimmer ist zum Flur hin offen und die Küche zum Wohnzimmer hin ebenfalls. In so gut wie allen Räumen gibt es bodentiefe Fenster, was die Wohnung sehr hell macht. Der Balkon ist nach Westen ausgerichtet, so dass wir praktisch von morgens in Schlafzimmer und Küche über mittags im Wohnzimmer bis abends in Wohnzimmer und den Kinderzimmern Sonne haben, so sie sich denn zeigt.






Ich habe leider nicht alles fotografiert damals. Aber das kriegt ihr hier in den nächsten Wochen sicher noch zu sehen.
Die Wohnung ist leider nicht mehr in Zuffenhausen, sondern in Giebel, ziemlich weit außerhalb. Das ist noch gewöhnungsbedürftig, vor allem, weil ja alle Freunde in Zuffenhausen wohnen, und man jetzt immer planen muss. Aber wir fallen aus der Haustür raus und sind schon an der Stadtbahnhaltestelle, so dass wir letztendlich sehr schnell in Stuttgart und auch in Zuffenhausen sind. Das ist vor allem für die Jungs gut, denn somit ist der Weg zu Schule und Ausbildungsstelle jetzt auch nicht umständlicher als vorher.
Vom Balkon aus schauen wir auf den „Marktplatz“ des Stadtteils. Hier spielt sich das Leben ab, und hier gibt es auch ein paar Geschäfte. So ist also zumindest der schnelle Noteinkauf gesichert. Und auch der Döner zum Mittag 😉 .
So wohnen wir hier also doch sehr gut, zumal die Wohnung, die ja wirklich schön ist, für vieles entschädigt. Und Besuche planen wir nun einfach immer. Und manchmal geht es auch immer noch spontan 🙂 .

Inzwischen wohnen wir ja auch schon 4 Monate hier. Wir haben uns eingelebt. Die Wohnung ist eingerichtet. Der Balkon ist heißgeliebt, von Mensch und Tier. Wir fühlen uns wohl hier.
